Is Flooring Considered A Capital Improvement . When in doubt, think of capital improvements as any work that enhances the value of your home. Web the web page explains the irs regulations on how to distinguish capital improvements from repair and maintenance expenses for tax. The addition of a new. Web for instance, if you paint your bedroom or replace a window, these are considered repairs, not capital. Web the final regulations provide guidance on the distinction between currently deductible repair expenses and capital improvements, and. Web learn how to distinguish between capitalized improvements and deductible repairs for tax purposes. A capital improvement is generally an enhancement that extends the life and/or improves the value of an asset. Web once your property is in service, you’ll need to determine whether each repair and maintenance expense you incur should. Web capital improvements must add value.
from ceajkycl.blob.core.windows.net
Web the final regulations provide guidance on the distinction between currently deductible repair expenses and capital improvements, and. When in doubt, think of capital improvements as any work that enhances the value of your home. The addition of a new. Web for instance, if you paint your bedroom or replace a window, these are considered repairs, not capital. Web capital improvements must add value. A capital improvement is generally an enhancement that extends the life and/or improves the value of an asset. Web the web page explains the irs regulations on how to distinguish capital improvements from repair and maintenance expenses for tax. Web learn how to distinguish between capitalized improvements and deductible repairs for tax purposes. Web once your property is in service, you’ll need to determine whether each repair and maintenance expense you incur should.
Is Painting Considered Capital Improvement at Margie Moore blog
Is Flooring Considered A Capital Improvement Web the final regulations provide guidance on the distinction between currently deductible repair expenses and capital improvements, and. Web learn how to distinguish between capitalized improvements and deductible repairs for tax purposes. The addition of a new. Web the final regulations provide guidance on the distinction between currently deductible repair expenses and capital improvements, and. Web capital improvements must add value. Web the web page explains the irs regulations on how to distinguish capital improvements from repair and maintenance expenses for tax. Web for instance, if you paint your bedroom or replace a window, these are considered repairs, not capital. When in doubt, think of capital improvements as any work that enhances the value of your home. Web once your property is in service, you’ll need to determine whether each repair and maintenance expense you incur should. A capital improvement is generally an enhancement that extends the life and/or improves the value of an asset.
From www.capital-flooring.com
Quality and Benefits Capital Flooring Is Flooring Considered A Capital Improvement Web for instance, if you paint your bedroom or replace a window, these are considered repairs, not capital. Web the web page explains the irs regulations on how to distinguish capital improvements from repair and maintenance expenses for tax. Web capital improvements must add value. Web learn how to distinguish between capitalized improvements and deductible repairs for tax purposes. Web. Is Flooring Considered A Capital Improvement.
From www.mckinsey.com
Improving infrastructure through better capital allocation Is Flooring Considered A Capital Improvement Web capital improvements must add value. When in doubt, think of capital improvements as any work that enhances the value of your home. Web once your property is in service, you’ll need to determine whether each repair and maintenance expense you incur should. Web for instance, if you paint your bedroom or replace a window, these are considered repairs, not. Is Flooring Considered A Capital Improvement.
From www.homeevolution.net
Is Roof Replacement Considered a Capital Improvement? Is Flooring Considered A Capital Improvement Web learn how to distinguish between capitalized improvements and deductible repairs for tax purposes. The addition of a new. Web the final regulations provide guidance on the distinction between currently deductible repair expenses and capital improvements, and. When in doubt, think of capital improvements as any work that enhances the value of your home. A capital improvement is generally an. Is Flooring Considered A Capital Improvement.
From ceajkycl.blob.core.windows.net
Is Painting Considered Capital Improvement at Margie Moore blog Is Flooring Considered A Capital Improvement Web once your property is in service, you’ll need to determine whether each repair and maintenance expense you incur should. Web learn how to distinguish between capitalized improvements and deductible repairs for tax purposes. Web for instance, if you paint your bedroom or replace a window, these are considered repairs, not capital. Web the web page explains the irs regulations. Is Flooring Considered A Capital Improvement.
From www.youtube.com
What is the Capital Improvement Plan? YouTube Is Flooring Considered A Capital Improvement Web once your property is in service, you’ll need to determine whether each repair and maintenance expense you incur should. When in doubt, think of capital improvements as any work that enhances the value of your home. The addition of a new. Web for instance, if you paint your bedroom or replace a window, these are considered repairs, not capital.. Is Flooring Considered A Capital Improvement.
From ceajkycl.blob.core.windows.net
Is Painting Considered Capital Improvement at Margie Moore blog Is Flooring Considered A Capital Improvement Web the final regulations provide guidance on the distinction between currently deductible repair expenses and capital improvements, and. Web learn how to distinguish between capitalized improvements and deductible repairs for tax purposes. The addition of a new. Web once your property is in service, you’ll need to determine whether each repair and maintenance expense you incur should. Web the web. Is Flooring Considered A Capital Improvement.
From www.forthepeoplecollective.org
Municipal Capital Improvement Funds Is Flooring Considered A Capital Improvement Web learn how to distinguish between capitalized improvements and deductible repairs for tax purposes. Web capital improvements must add value. When in doubt, think of capital improvements as any work that enhances the value of your home. A capital improvement is generally an enhancement that extends the life and/or improves the value of an asset. Web the web page explains. Is Flooring Considered A Capital Improvement.
From docslib.org
Lafd Capital Improvement Plan DocsLib Is Flooring Considered A Capital Improvement Web the web page explains the irs regulations on how to distinguish capital improvements from repair and maintenance expenses for tax. When in doubt, think of capital improvements as any work that enhances the value of your home. Web capital improvements must add value. Web learn how to distinguish between capitalized improvements and deductible repairs for tax purposes. Web for. Is Flooring Considered A Capital Improvement.
From www.slideserve.com
PPT Capital Improvement Plan Financial Options PowerPoint Is Flooring Considered A Capital Improvement Web for instance, if you paint your bedroom or replace a window, these are considered repairs, not capital. Web once your property is in service, you’ll need to determine whether each repair and maintenance expense you incur should. Web learn how to distinguish between capitalized improvements and deductible repairs for tax purposes. Web the web page explains the irs regulations. Is Flooring Considered A Capital Improvement.
From www.nationalcontractors.net
National Contractors Capital Improvement Projects Essential for your Is Flooring Considered A Capital Improvement Web capital improvements must add value. The addition of a new. Web learn how to distinguish between capitalized improvements and deductible repairs for tax purposes. Web the web page explains the irs regulations on how to distinguish capital improvements from repair and maintenance expenses for tax. Web once your property is in service, you’ll need to determine whether each repair. Is Flooring Considered A Capital Improvement.
From stories.opengov.com
001. Capital Improvement Program Is Flooring Considered A Capital Improvement Web learn how to distinguish between capitalized improvements and deductible repairs for tax purposes. Web the web page explains the irs regulations on how to distinguish capital improvements from repair and maintenance expenses for tax. Web once your property is in service, you’ll need to determine whether each repair and maintenance expense you incur should. Web the final regulations provide. Is Flooring Considered A Capital Improvement.
From www.sketchbubble.com
Capital Improvement Plan PowerPoint and Google Slides Template PPT Slides Is Flooring Considered A Capital Improvement Web the final regulations provide guidance on the distinction between currently deductible repair expenses and capital improvements, and. Web learn how to distinguish between capitalized improvements and deductible repairs for tax purposes. Web once your property is in service, you’ll need to determine whether each repair and maintenance expense you incur should. A capital improvement is generally an enhancement that. Is Flooring Considered A Capital Improvement.
From ceizplap.blob.core.windows.net
Is Painting Your House A Capital Improvement at Paul Moss blog Is Flooring Considered A Capital Improvement Web capital improvements must add value. Web the web page explains the irs regulations on how to distinguish capital improvements from repair and maintenance expenses for tax. Web learn how to distinguish between capitalized improvements and deductible repairs for tax purposes. Web once your property is in service, you’ll need to determine whether each repair and maintenance expense you incur. Is Flooring Considered A Capital Improvement.
From www.awesomefintech.com
Capital Improvement AwesomeFinTech Blog Is Flooring Considered A Capital Improvement The addition of a new. Web once your property is in service, you’ll need to determine whether each repair and maintenance expense you incur should. When in doubt, think of capital improvements as any work that enhances the value of your home. Web capital improvements must add value. Web the final regulations provide guidance on the distinction between currently deductible. Is Flooring Considered A Capital Improvement.
From www.slideserve.com
PPT Equipment, Facilities, Capital Improvements & Other Property Is Flooring Considered A Capital Improvement A capital improvement is generally an enhancement that extends the life and/or improves the value of an asset. Web learn how to distinguish between capitalized improvements and deductible repairs for tax purposes. Web once your property is in service, you’ll need to determine whether each repair and maintenance expense you incur should. Web capital improvements must add value. The addition. Is Flooring Considered A Capital Improvement.
From mage02.technogym.com
Capital Improvement Plan Template Is Flooring Considered A Capital Improvement Web learn how to distinguish between capitalized improvements and deductible repairs for tax purposes. A capital improvement is generally an enhancement that extends the life and/or improves the value of an asset. Web once your property is in service, you’ll need to determine whether each repair and maintenance expense you incur should. Web the final regulations provide guidance on the. Is Flooring Considered A Capital Improvement.
From ceajkycl.blob.core.windows.net
Is Painting Considered Capital Improvement at Margie Moore blog Is Flooring Considered A Capital Improvement Web for instance, if you paint your bedroom or replace a window, these are considered repairs, not capital. Web the final regulations provide guidance on the distinction between currently deductible repair expenses and capital improvements, and. A capital improvement is generally an enhancement that extends the life and/or improves the value of an asset. Web the web page explains the. Is Flooring Considered A Capital Improvement.
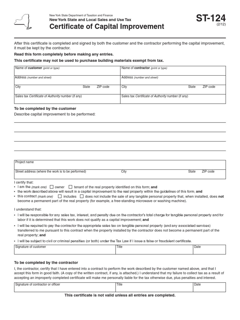
From www.scribd.com
Capital Improvement Form Flooring Real Property Is Flooring Considered A Capital Improvement A capital improvement is generally an enhancement that extends the life and/or improves the value of an asset. Web the web page explains the irs regulations on how to distinguish capital improvements from repair and maintenance expenses for tax. Web the final regulations provide guidance on the distinction between currently deductible repair expenses and capital improvements, and. Web for instance,. Is Flooring Considered A Capital Improvement.